山西省政府近日批复太原台骀山滑世界农林生态游乐园有限公司冰雕馆“10·1”重大火灾事故调查报告。经省政府事故调查组认定,该起事故是一起重大生产安全责任事故。
2020年10月1日,位于太原市迎泽区郝庄镇小山沟村的太原台骀山滑世界农林生态游乐园有限公司冰雕馆发生重大火灾事故,造成13人死亡、15人受伤,过火面积约2258平方米,直接经济损失1789.97万元。
事故发生后,党中央、国务院及省委、省政府高度重视。依据有关法律法规,省政府于事故发生当日成立了事故调查组,并聘请消防、建筑等方面专家参与事故调查。事故调查组坚持“四不放过”和“科学严谨、依法依规、实事求是、注重实效”的原则,查明了事故发生经过、原因、人员伤亡和直接经济损失情况,认定了事故性质和责任,分析了事故暴露出的突出问题和教训,提出了防范和改进工作的措施建议。省纪委监委成立事故责任追究审查调查组,对有关地方党委政府、相关部门和人员涉嫌违法违纪及失职渎职问题开展调查,提出了责任认定意见。国务院安委会对事故查处进行挂牌督办,并派出工作组督促指导事故调查工作。
经现场勘验、调查询问、视频分析、技术鉴定及专家论证,调查认定引发火灾的直接原因是:当日景区10千伏供电系统故障维修结束恢复供电后,景区电力作业人员在将自备发电机供电切换至市电供电时,进行了违章操作,带负荷快速拉、合隔离开关,在景区小火车通道照明线路上形成的冲击过电压,击穿了装饰灯具的电子元件造成短路;通道内照明电气线路设计、安装不规范,采用的无漏电保护功能大容量空气开关无法在短路发生后及时跳闸切除故障,持续的短路电流造成电子元件装置起火,引燃线路绝缘层及聚氨酯保温材料,进而引燃聚苯乙烯泡沫夹芯板隔墙及冰雕馆内的聚氨酯保温材料。火势在风力作用下迅速扩大蔓延,产生大量高温有毒烟气。加之冰雕游览区游览线路设计复杂,疏散通道不通畅,部分安全出口被人为封堵,导致发生火灾时游览人员不能及时逃生,因一氧化碳中毒、呼吸道热灼伤、创伤性休克等原因造成人员伤亡。
事故调查组认定,太原台骀山滑世界农林生态游乐园有限公司在限制建设区范围内违法占用集体土地;未取得相关证照擅自开工建设,未进行许可、备案擅自投入使用;冰雕馆建设无专业设计、无资质施工、无监理单位、无竣工验收,且违规大量使用聚氨酯、聚苯乙烯等易燃可燃材料,将电气线路敷设在聚苯乙烯夹芯彩钢板上;日常管理混乱,安全意识淡薄、安全管理流于形式、安全隐患排查整治走过场。地方党委政府对安全生产工作的重要性认识不足,贯彻落实安全生产方针政策、法律法规和重大决策部署不到位,没有正确处理好安全与发展的关系;文化和旅游部门、消防救援机构、林业部门、国土部门及城乡管理部门,未认真履行工作职责和监管职责,对相关法律法规落实不到位,安全生产工作开展不扎实,对存在的违法违规行为监管执法不到位,查处打击不力。
对事故企业13名责任人,公安机关依法采取刑事措施,其中6名责任人依法进行逮捕、7名责任人依法监视居住,并移送检察机关进行公诉;对事故涉及的38名有关公职人员,给予了党纪政务处分或组织处理。
事故调查组提出了五个方面的防范措施建议,要求各级党委政府及有关部门深刻汲取事故教训,牢固树立安全发展理念,健全安全生产责任体系;完善行政审批联动机制,加强安全生产源头管控;深入开展旅游景区专项整治,彻底排查治理安全隐患;抓住企业“关键少数”,压实安全生产主体责任;广泛开展宣传教育,不断增强安全防范意识和自救互救能力。
事故调查报告全文如下
2020年10月1日,位于太原市迎泽区郝庄镇小山沟村的太原台骀山滑世界农林生态游乐园有限公司冰雕馆发生重大火灾事故,造成13人死亡、15人受伤,过火面积约2258平方米,直接经济损失1789.97万元。
事故发生后,党中央、国务院及省委、省政府高度重视。中央政治局委员、国务院副总理孙春兰、刘鹤,国务委员王勇等领导同志相继作出批示,要求全力以赴做好伤员救治工作,稳妥开展善后处置;抓紧查明事故原因,严肃追责问责;加强各类旅游景点和人员密集场所隐患排查和安全监管,弥补短板和漏洞,坚决防止重特大事故发生。省委书记楼阳生、省长林武批示要求,全力搜救被困人员,不惜代价抢救伤员,妥善做好善后工作;深刻查找事故原因,切实采取有效措施,坚决杜绝发生重特大事故。林武同志第一时间率有关人员赶赴现场,指挥抢险救援工作。应急管理部党委书记黄明视频连线调度指挥,并派出消防救援局局长琼色率工作组赶赴现场指导救援处置工作。省委、省政府立即召开会议,在全省部署开展安全生产风险隐患排查治理、人员密集场所消防安全专项整治行动。
这起事故发生在国庆、中秋当天,造成重大社会影响。依据《安全生产法》《生产安全事故报告和调查处理条例》等有关法律法规,省政府于10月1日成立了由省应急管理厅牵头,省公安厅、省自然资源厅、省住房和城乡建设厅、省文化和旅游厅、省市场监督管理局、省消防救援总队、省总工会和太原市政府等单位有关负责同志参加的太原台骀山滑世界农林生态游乐园有限公司“10·1”重大火灾事故调查组(以下简称事故调查组),并聘请应急管理部沈阳消防研究所、天津消防研究所、山西省建筑设计研究院、山西大学电力与建筑学院等方面专家参与事故调查工作。省纪委监委依据《监察法》《安全生产法》《中国共产党纪律处分条例》《中国共产党问责条例》《中国共产党纪律检查机关监督执纪工作规则》等法律法规,及时成立了责任事故追责问责审查调查组开展调查。国务院安委会对事故查处挂牌督办,并派出工作组督促指导事故调查工作。
事故调查组坚持“四不放过”和“科学严谨、依法依规、实事求是、注重实效”的原则,通过现场勘察、查阅资料、检验鉴定、调查取证、视频分析和专家论证等方式,查明了事故发生经过、原因、人员伤亡和直接经济损失情况,认定了事故性质和责任,提出了对有关单位和人员的责任认定意见,分析了事故暴露出的主要问题和教训,提出了加强和改进工作的措施建议。
一、事故单位有关情况
(一)太原台骀山滑世界农林生态游乐园有限公司(以下简称“台骀山游乐园公司”)
该公司于2014年12月3日注册成立,法定代表人韩伟,董事长兼总经理韩国林为实际控制人,该公司为家族式企业(公司股权构成及组织结构见图1),现有正式员工107人,同时根据季节性需要临时聘用100余人。该公司投资运营的台骀山滑世界农林生态游乐园(以下简称“台骀山游乐园”)项目位于太原市迎泽区郝庄镇小山沟村,2013年3月开工建设,2014年7月开始对外营业,逐步建成滑世界乐园、碉堡文化园、根祖文化园、野生植物园四大主题园,年接待游客约40万人次,高峰期每天游客约5000人次,平时约1000人次。

图1:台骀山游乐园公司股权构成及组织结构
(二)证照手续办理情况
1.营业执照。2014年12月3日,台骀山游乐园公司初次领取《营业执照》,登记名称为太原台骀山滑世界农林生态游乐园有限公司,法定代表人为韩伟,类型为有限责任公司(自然人投资或控股),注册资本为5000万人民币,注册号为140100200694695,住所为太原市迎泽区郝庄镇小山沟村桃树湾,营业期限为2014年12月3日至2015年5月16日,登记机关为太原市工商行政管理局。
后因经营范围等发生变化,6次变更营业执照。现《营业执照》登记时间为2020年4月21日,统一社会信用代码为911401003171479913,营业期限为2014年12月3日至2034年12月3日,登记机关为太原市行政审批服务管理局。经营范围为餐饮住宿、展览展示、儿童室内游戏、主题乐园、室外拓展、景区开发与管理等。
2.框架协议。台骀山游乐园项目先后两次签订框架协议:
2012年11月26日,该项目前期投资主体山西偶然食品饮料有限公司,与太原市迎泽区政府签订了《东山城郊森林公园项目合作框架协议》,项目名称为“小山沟城郊森林公园”,占地面积为1960.16亩,绿化任务为1568亩,建设周期为两年,建设内容为“生态绿化及其防火道路等配套设施;城郊森林公园相关配套设施”,建设原则为“先绿化、后实施公园配套设施建设”;2013年1月19日,迎泽区政府、迎泽区林业局、山西偶然食品饮料有限公司签订了《小山沟城郊森林公园项目推进目标责任书》,并列入当年迎泽区政府重点工程项目。
2015年7月15日,台骀山游乐园公司与太原市迎泽区政府签订了《东山城郊森林公园项目合作框架协议》,项目名称为小山沟城郊森林公园二期,占地面积为2911.89亩,绿化任务为2330亩,建设周期为三年。
3.项目备案。台骀山游乐园项目共进行了三次备案:
2012年12月30日,太原市迎泽区发展和改革局向山西偶然食品饮料有限公司出具了投资项目备案证,项目名称为小山沟城郊森林公园(废弃石料厂平整项目)。
2015年9月25日,太原市迎泽区发展和改革局向台骀山游乐园公司出具了投资项目备案证,项目名称为台骀山滑世界农林科技博览园。
2016年8月15日,山西省发展和改革委员会向台骀山游乐园公司出具了投资项目备案证,项目名称为新建台骀山景区项目。
4.镇域总体规划手续。2019年12月16日,经市政府同意将“小山沟城郊森林公园”纳入《太原市迎泽区郝庄镇总体规划(2015年-2035年)》。
5.土地承包手续。2013年3月3日,山西偶然食品饮料有限公司与太原市迎泽区郝庄镇小山沟村签订了《小山沟村城郊公园项目土地承包经营合同书》,承包了小山沟村1960.16亩;2014年11月6日,山西偶然食品饮料有限公司与台骀山游乐园公司签订协议,将土地使用权无偿转让。2015年,台骀山游乐园公司与孟家井村、董家庄村签订了《小山沟村城郊公园(二期)项目土地承包经营合同书》,共承包2911.89亩进行绿化造林(截止事故发生前,林业部门还未对绿化造林面积进行核查认定)。
6.林地手续。2013年9月30日,原迎泽区林业局同意郝庄镇小山沟村委会占用110亩林地进行森林防火通道建设,由山西偶然食品饮料有限公司投资实施。2016年1月14日,经太原市林业局核查,认定台骀山游乐园公司已完成一期绿化造林任务,面积为1567.9亩。
7.环保备案。2015年7月21日,太原市环境保护局迎泽分局对台骀山游乐园公司已建成一期工程项目未进行环保备案作出处罚。2016年11月11日,出具了同意该工程项目环保备案意见书。
8.景区等级评定。经迎泽区、太原市旅游部门逐级推荐,2015年12月,台骀山游乐园被省旅游资源规划开发质量评定委员会确定为国家4A级旅游景区;2019年8月,经该评定委员会复核,保留其国家4A级旅游景区资格。
台骀山游乐园公司现有建设项目共占用167.51亩土地,不符合迎泽区土地利用总体规划。未依法办理土地使用、建设用地规划、建设工程规划、建设工程施工、建设工程消防等相关手续。
(三)冰雕馆基本情况
1.建设运营情况。2014年2月开始建设,2014年底建成。由祁县包工头王海组织人员进行钢架结构施工,由太原市晋源区津成电线电缆销售处刘托组织工人喷涂聚氨酯保温层;该项目主体工程无专业设计、无资质施工、无监理单位、无竣工验收。冰雕由哈尔滨瑞景冰雪文化艺术发展有限公司设计、制作、安装。2015年2月13日对外营业后,由该公司经营、韩建军分管,正式员工9名。从2018年1月起,由韩建军承包经营,2020年受疫情影响,3月份恢复对外营业。

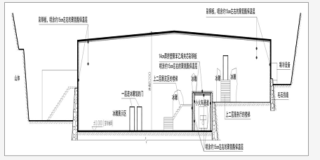
2.总体结构情况。冰雕馆(见图2)项目位于台骀山游乐园西北处,依山谷而建,南北两侧为山体,东西长133.85m,东口宽32.8米、西口宽8.96米(东西口剖面图见图3、图4),高8.2米,总建筑面积为2258平方米。冰雕馆主体为钢架结构,南北两侧外墙4米以上用彩钢板围护,顶部为彩钢板封闭。内部喷涂约15厘米厚的聚氨酯作保温层,同时用约14厘米厚的聚苯乙烯夹芯彩钢板隔离成两个相对独立的部分,南侧为小火车通道,北侧为冰雕游览区(主体建筑一层、局部二层)。小火车通道照明线路均采用铰接方式连接,敷设在聚苯乙烯夹芯彩钢板上,并被聚氨酯保温材料覆盖。冰雕游览区共有5个安全出口(见图5),分别是东侧一楼入口、东侧二楼出口、西侧出口、南侧2个出口。小火车通道内有10个应急照明灯具、5具灭火器;冰雕游览区内有2个应急照明灯具,灭火器24具。

图3 冰雕馆东口剖面图

图4 冰雕馆西口剖面图

图5 冰雕馆平面示意图
二、事故发生经过、抢险救援、善后处置以及造成的直接经济损失情况
(一)事故发生经过
10月1日7时34分35秒,台骀山游乐园10千伏线路发生故障,为保证正常营业,8时50分许景区水电部工作人员卢鸿勇开启了4台自备发电机供电;随后,水电总监李跃通知郝庄供电所工作人员董继福维修线路,董继福联系山西明业电力工程有限公司小店工程部工作人员牛样明协助其处理故障。故障排除后,12时49分许,牛样明电话联系董继福得知可以供电后将市电接通;12时51分44秒,卢鸿勇在未将低压用电设备及发电机断开的情况下,直接将单刀双掷隔离开关从自备发电机端切换至市电端;12时57分49秒,火车通道内装饰灯具熄灭;12时59分22秒,火车通道西口开始冒烟,12时59分37秒出现明火;12时59分38秒,冰雕游览区内西南侧开始冒烟;13时08秒,浓烟从火车通道及冰雕游览区东口涌出。事故发生时,冰雕游览区内共有28名游客被困。
(二)抢险救援情况
1.自救互救情况。12时59分许,卢鸿勇接到景区火山乐园项目部经理张辉电话,得知冰雕馆方向冒烟,跑至冰雕馆西口西南方向约26米处查看,发现火车通道内冰雕馆一侧有明火,随即到配电室断电;13时01分许,景区儿童游乐小火车兼职司机何帅飞发现冰雕馆西侧冒烟后,立即拨打119报警;冰雕馆负责人韩建军与赶到现场的十余名员工用灭火器在火车通道西口灭火;13时05分许,绿化部总监郭永安安排景区洒水车到冰雕馆西口灭火;13时10分许,景区北门保安潘凯升赶到迎泽区林业局东山森防灭火救援大队报警;公司车辆管理部经理郝刚刚得知火情后,立即驱车携带约60具干粉灭火器于13时30分许到达冰雕馆西侧支援灭火。
冰雕游览区内焦慧涛等游客在闻到刺鼻的气味、发现冰雕馆内停电、看到有明火由西向东蔓延并伴有浓烟后,沿原路返回,发现冰雕馆入口门无法打开,随即用力敲打、踹门,检票员李富听到后开门,15名被困游客由此逃生,其中焦慧涛于13时07分许报警。
2.应急救援情况。13时01分31秒,太原市消防救援支队指挥中心接到报警后,省、市、区三级立即启动应急响应。省长林武、省政法委书记商黎光、常务副省长胡玉亭、副省长贺天才和省委常委、太原市委书记罗清宇,省政协副主席、市长李晓波以及迎泽区党委、政府主要负责同志率领工作组赶赴现场指挥抢险救援。各级应急、公安、文旅、卫健、消防等部门积极参与,迅速组织19支应急队伍、276名专职救援人员,并调集48辆消防救援车辆赶赴现场,全力展开现场灭火和人员搜救行动。
13时25分,驻守台骀山游乐园的迎泽区林业局东山森防灭火救援大队先期赶到现场救援。13时45分后,大东关、郝庄等17个消防救援站,以及太原市消防救援支队、山西省消防救援总队全勤指挥部和太原市矿山救护大队陆续到达现场投入救援。14时30分,搜救出第一名遇难人员,16时49分搜救出最后一名遇难人员,18时30分,现场救援结束。事故共造成13人遇难、15人受伤。
救援过程中,太原市公安局迎泽分局、迎泽区森防基地以及郝庄镇政府等组织450余人,积极做好协调保障工作。太原市急救中心派出24辆救护车(含两辆指挥车)、73名医护人员进行医疗救治。
(三)医疗救治和善后处置情况
事故发生后,迎泽区立即成立了由党政主要负责同志任组长的善后处置组,下设9个工作小组,全力做好伤员救治和遇难者家属安抚工作。在医疗救治上,最大限度配备医护力量,精心救治受伤人员,15名受伤人员中14名于10月2日出院,1名于10月4日出院。在善后处置上,“一对一”组建工作专班,安抚遇难者家属,协商赔偿等事宜。10月15日,13名遇难者家属全部签订赔偿协议;10月19日前,遇难者全部安葬。
(四)直接经济损失情况
事故调查组依据《企业职工伤亡事故经济损失统计标准》(GB6721-1986),认定事故造成直接经济损失1789.97万元。其中:人员伤亡支出费用1620万元,灭火救援损耗费用18.8万元,财产损失价值151.17万元。
三、事故直接原因及性质
(一)事故直接原因
经现场勘验、调查询问、视频分析、技术鉴定及专家论证,调查认定起火点位于火车通道内北侧距西口6至11米处。引发火灾的直接原因是:当日景区10千伏供电系统故障维修结束恢复供电后,景区电力作业人员在将自备发电机供电切换至市电供电时,进行了违章带负荷快速拉、合隔离开关操作,在火车通道照明线路上形成的冲击过电压,击穿了装饰灯具的电子元件造成短路;通道内照明电气线路设计、安装不规范,采用的无漏电保护功能大容量空气开关无法在短路发生后及时跳闸切除故障,持续的短路电流造成电子元件装置起火,引燃线路绝缘层及聚氨酯保温材料,进而引燃聚苯乙烯泡沫夹芯板隔墙及冰雕馆内的聚氨酯保温材料。
造成火势迅速蔓延的主要原因:一是冰雕馆内大量使用易燃可燃的聚氨酯保温材料和聚苯乙烯夹芯彩钢板,聚氨酯材料燃点低燃烧速度极快,起火后火势迅速扩大蔓延。二是火灾发生时,火势在风力作用下由西向东迅速蔓延。三是聚苯乙烯夹芯彩钢板隔墙燃烧后,使冰雕游览区和火车通道贯通,火灾发生后,迅速蔓延至整个冰雕馆。
造成重大人员伤亡的主要原因:一是火灾发生后,聚氨酯、聚苯乙烯等易燃可燃材料大面积燃烧,产生了大量高温有毒烟气。二是冰雕游览区游览线路设计复杂,事发时冰雕游览区人为断电,现场无工作人员引导疏散。三是冰雕馆内疏散通道不通畅,5个出口中有3个人为封堵或紧固、1个无法从内部打开(西侧出口人为用冰块封堵、南侧两个出口设置在火车通道内且用铁销紧固、入口门无法从内部打开)。上述原因导致发生火灾时游览人员不能及时逃生,因一氧化碳中毒、呼吸道热灼伤、创伤性休克等原因造成人员伤亡。
(二)事故性质
调查认定,太原台骀山滑世界农林生态游乐园有限公司冰雕馆“10·1”火灾事故是一起重大生产安全责任事故。
四、企业主要问题
(一)在证照手续方面。台骀山游乐园公司违反太原市迎泽区土地利用总体规划,在限制建设区范围内违法占用集体土地;未办理《建设规划许可证》和《施工许可证》擅自开工建设;未进行行政许可或备案,擅自投入使用。
(二)在建设施工方面。在冰雕馆建设中存在无专业设计、无资质施工、无监理单位、无竣工验收的问题;未落实2015年《国务院安委会办公室关于河南平顶山“5·25”特别重大火灾事故情况的通报》等要求,使用了聚氨酯、聚苯乙烯等易燃可燃材料,将电气线路敷设在聚苯乙烯夹芯彩钢板上,并采用铰接方式接线,被聚氨酯保温层覆盖,埋下重大消防安全隐患。
(三)在日常管理方面。未根据《安全生产法》有关规定,设置安全生产管理机构或者配备专职安全生产管理人员,建立、健全本单位全员安全生产责任制;制定的规章制度针对性、操作性不强,没有以正式文件印发,仅为了应对上级部门检查和景区评级;没有及时排查治理隐患并建立台账;景区电力作业人员未经专门培训并取得特种作业操作证,违规上岗作业;未按照《消防安全责任制实施办法》第十五条规定,明确各岗位消防安全责任人及其职责,制定消防安全操作规程,编制冰雕馆消防安全应急预案并开展应急疏散演练;消防安全培训缺乏针对性,员工安全意识不强、能力不足;未组织排查景区内使用聚氨酯、聚苯乙烯作为装修装饰和保温材料、设置影响消防通道、安全出口障碍物、私拉乱接电气线路等安全隐患。
(四)在落实监管指令方面。拒不执行国土资源管理部门“自行拆除违法占地上建(构)筑物”的行政处罚决定;未严格执行文化旅游管理部门因其无证经营并存在大量安全隐患下达的停业整顿通知,未经验收批准擅自对外开放。
五、有关部门主要问题
(一)文化和旅游部门
1.迎泽区文化和旅游局(原迎泽区文体广电新闻出版局)。违反《国务院关于加强和改进消防工作的意见》和《游乐园(场)服务质量》的要求,将未取得消防验收许可证、不符合消防安全条件的台骀山游乐园推荐为国家4A级旅游景区;未按照《A级旅游景区安全生产目标责任书》要求,组织对台骀山游乐园安全生产工作进行认真检查督导;未按照省、市文化和旅游部门关于重大节假日、重要时段安全检查的要求,在组织对台骀山游乐园进行检查时不认真、不细致、不严格,未能及时发现冰雕馆长期存在的安全出口封堵、电气线路布置不规范等问题;2017年3月对台骀山游乐园采取停业整顿措施后,对其未经同意擅自恢复开放的行为没有采取相应措施予以纠正。
2.太原市文化和旅游局(原太原市旅游局)。违反《国务院关于加强和改进消防工作的意见》和《游乐园(场)服务质量》的要求,将未取得消防验收许可证、不符合消防安全条件的台骀山游乐园推荐为国家4A级旅游景区;在组织对台骀山游乐园进行检查或者复核时,未能及时发现冰雕馆存在的重大消防安全隐患;指导迎泽区文化和旅游局履行旅游安全监管职责不力。
3.山西省旅游景区质量等级评定委员会。违反《国务院关于加强和改进消防工作的意见》和《游乐园(场)服务质量》的要求,将未取得消防验收许可证、不符合消防安全条件的台骀山游乐园确定为国家4A级旅游景区,在2019年8月对其复核时也未认真把关。
(二)消防救援机构
1.迎泽区消防救援大队。未按照《消防法》(2008年修订)第五十八条规定,对台骀山游乐园公司建设工程未取得消防行政许可或进行备案擅自投入使用的问题予以查处;未针对台骀山游乐园公司评定为4A级旅游景区、时段性游客大量聚集的客观实际,按照《消防法》第十七条和《山西省消防安全重点单位界定标准》规定,将其确定为消防安全重点单位进行监督检查;未认真吸取事故教训并按照各级政府有关要求,对台骀山游乐园公司多个场馆使用易燃可燃的聚氨酯、聚苯乙烯等材料,以及冰雕馆消防疏散通道和安全出口不通畅等问题查处不到位;在2017年3月联合执法检查中,对发现的冰雕馆部分电线脱皮、电表箱电线未穿管、现场人员不会使用灭火器和消火栓等问题未依法进行查处;在开展的多次执法检查中,未按规定制作使用并下达执法文书。
2.太原市消防救援支队。未按照《消防监督检查规定》第四条要求,对迎泽区消防救援大队消防安全监管工作指导监督不力,对其开展消防监督检查不到位的问题失察。
(三)林业部门
迎泽区林业局。未认真履行景区主管部门责任,没有依法查处台骀山游乐园未经安全风险评估、不符合景区开放条件违规接待游客的行为;在组织开展的森林专项督查和日常检查中,未依法对台骀山游乐园多次擅自占用林地建设的行为进行查处。
(四)原国土资源部门
1.原太原市国土资源局迎泽分局。未认真履行土地管理职责,对辖区内违法占地行为监管执法不到位;作为区政府土地矿产卫片执法专项监督检查行动领导小组办公室,在2013年以来卫片执法监督检查行动中,对制止和拆除台骀山游乐园违法占地建设督导不力,没有形成打击违法占地建设的整体合力。
2.原太原市国土资源局。未认真落实《国土资源执法监督规定》第七条要求,对原太原市国土资源局迎泽分局国土资源执法监察工作指导、监督不到位。
(五)城乡管理部门
1.迎泽区城乡管理局(原迎泽区城市管理局)。未按照《太原市迎泽区人民政府关于进一步明确安全生产监管职责的通知》《关于印发迎泽区2014年土地矿产卫片执法监督检查工作方案的通知》要求认真履行职责,对台骀山游乐园违法占地建设行为查处打击不力。
2.迎泽区城乡管理综合行政执法大队(原太原市城市管理行政执法局迎泽区分局、太原市城乡管理行政执法局迎泽区分局)。落实区政府土地矿产卫片执法监督检查工作不到位,未对台骀山游乐园违法占地建设行为及时制止和查处。
六、地方党委政府主要问题
(一)太原市迎泽区郝庄镇
贯彻城乡规划、土地管理、安全生产等法律法规不到位。对台骀山游乐园在集体土地上违法占地行为查处不力,对违法建设行为未依法采取“责令停止建设、限期改正;逾期不改正的,可以拆除”等措施;对辖区内消防安全工作组织领导不力,未认真落实《消防安全责任制实施办法》赋予的乡镇人民政府消防工作职责,在开展郝庄地区彩钢板建筑消防安全隐患集中整治工作中,未对台骀山游乐园进行检查;在日常检查中未发现其多处违规使用聚氨脂等易燃可燃材料,对检查中发现的应急通道布局不合理、灭火器材配备不达标、小吃城使用易燃可燃材料等问题督促企业整改不到位。
(二)太原市迎泽区
“人民至上、生命至上”理念树得不牢,没有正确处理经济发展与安全生产的关系,重项目引进、轻服务监管;贯彻落实地方党政领导干部安全生产责任制规定不认真,组织领导安全生产专项整治三年行动和“三零”(零上访、零事故、零案件)单位创建工作不扎实;未建立旅游景区综合协调机制,指导有关部门开展旅游景区安全风险管控和隐患排查治理工作有差距,对有关部门履行监管职责不到位失管失察;在重大节假日前,区领导组织有关部门对台骀山游乐园安全检查时不严不细不实;对国土资源部门多次报请拆除台骀山游乐园违法占地建设未研究部署,未按照规定组织对台骀山游乐园违法占用集体土地擅自建设的行为进行查处和拆除。
(三)太原市
未严格执行“安全第一、预防为主、综合治理”的方针,贯彻落实党中央、国务院及省委、省政府关于安全生产的决策部署不够有力,组织开展安全生产专项整治三年行动、“三零”单位创建工作不扎实,落实地方党政领导干部安全生产责任制规定不到位,推动有关部门落实“管行业必须管安全、管业务必须管安全、管生产经营必须管安全”要求不力,强化安全风险管控和隐患排查治理工作上有差距,对有关部门履行监管职责不到位和迎泽区未认真履行属地管理职责失管失察。
七、对有关人员责任认定及相关单位处理建议
(一)对有关人员的责任认定
1.公安机关已采取刑事措施人员(13人)
(1)韩国林,男,1960年6月12日出生,籍贯:山西省祁县,居民身份证号:140102196006125194。2020年10月4日,犯罪嫌疑人韩国林因涉嫌重大责任事故罪被公安机关依法刑事拘留,2020年11月9日被依法批准逮捕,现羁押于太原市第二看守所。
(2)韩伟,男,1988年10月28日出生,籍贯:山西省祁县,居民身份证号码:140106198810282515。2020年10月6日,犯罪嫌疑人韩伟因涉嫌重大责任事故罪被公安机关依法刑事拘留,2020年11月9日被依法批准逮捕,现羁押于太原市第二看守所。
(3)韩建军,曾用名韩军,男,1979年6月29日出生,籍贯:山西省祁县,居民身份证号码:142430197906293116。2020年10月4日,犯罪嫌疑人韩建军因涉嫌重大责任事故罪被公安机关依法刑事拘留,2020年11月9日被依法批准逮捕,现羁押于太原市第二看守所。
(4)郭美生,男,1994年11月12日出生,籍贯:山西省太原市小店区,居民身份证号码:140105199411122512。2020年10月6日,犯罪嫌疑人郭美生因涉嫌重大责任事故罪被公安机关依法刑事拘留,2020年11月9日被依法批准逮捕,现羁押于太原市第二看守所。
(5)李跃,男,1961年11月06日出生,籍贯:山西省祁县,居民身份证号码:142430196111060058。2020年10月6日,犯罪嫌疑人李跃因涉嫌重大责任事故罪被公安机关依法刑事拘留,2020年11月9日被依法批准逮捕,现羁押于太原市第二看守所。
(6)卢鸿勇,男,1965年06月28日出生,籍贯:山西省祁县,居民身份证号码:142430196506283117。2020年10月6日,犯罪嫌疑人卢鸿勇因涉嫌重大责任事故罪被公安机关依法刑事拘留,2020年11月9日被依法批准逮捕,现羁押于太原市第二看守所。
(7)韩宏,男,1987年02月02日出生,籍贯:山西省祁县,居民身份证号码:142430198702023135。2020年10月7日,犯罪嫌疑人韩宏因涉嫌重大责任事故罪被公安机关依法监视居住。
(8)李永威,男,1985年01月26日出生,籍贯:山西省祁县,居民身份证号码:142430198501263132。2020年10月7日,犯罪嫌疑人李永威因涉嫌重大责任事故罪被公安机关依法监视居住。
(9)段华,男,1965年05月29日出生,籍贯:山西省祁县,居民身份证号码:14243019650525041X。2020年10月7日,犯罪嫌疑人段华因涉嫌重大责任事故罪被公安机关依法监视居住。
(10)韩国珍,女,1971年06月02日出生,籍贯:山西省祁县,居民身份证号码:142430197106023126。2020年11月1日,犯罪嫌疑人韩国珍因涉嫌隐匿会计凭证、会计账簿、财务会计报告罪被公安机关依法监视居住。
(11)韩国梅,女,1977年02月05日出生,籍贯:山西省祁县,居民身份证号码:142430197702053129。2020年11月1日,犯罪嫌疑人韩国梅因涉嫌隐匿会计凭证、会计账簿、财务会计报告罪被公安机关依法监视居住。
(12)贺达,男,1998年05月03日出生,籍贯:山西省祁县,居民身份证号码:142430199805033138。2020年11月1日,犯罪嫌疑人贺达因涉嫌隐匿会计凭证、会计账簿、财务会计报告罪被公安机关依法监视居住。
(13)韩莹慧,女,1993年12月01日出生,籍贯:山西省祁县,居民身份证号码:142430199312013147。2020年11月1日,犯罪嫌疑人韩莹慧因涉嫌隐匿会计凭证、会计账簿、财务会计报告罪被公安机关依法监视居住。
目前,公安机关采取刑事措施的13名人员,已由公安机关依法移送检察机关进行公诉。
2.给予党纪政务处分35人。
文化和旅游部门(8人)
迎泽区文化和旅游局(4人)
(1)丁永爱,现任太原市迎泽区农业农村局党组书记、局长,2016年11月至2020年8月,担任太原市迎泽区文化局、文旅局(下称迎泽区文旅局)局长期间,执行“管行业必须管安全”的规定不到位,组织落实上级和本部门有关行业安全监督管理工作不严不细不实,对2017年台骀山景区未经整改验收擅自恢复营业的行为放任不管,致使景区重大安全隐患长期存在,负有主要领导责任。给予其撤销党内职务、政务撤职处分,降为四级主任科员。
(2)郭厦,2020年8月至今,担任太原市迎泽区文旅局党组书记、局长期间,对台骀山景区进行安全检查时,工作不严不细不实,未发现安全隐患,负有重要领导责任。给予其政务警告处分。
(3)阎立宏,现任太原市迎泽区水资源管护中心主任,2012年8月至2017年9月,担任太原市迎泽区文物旅游服务中心主任期间,将不符合条件的小山沟城郊森林公园推荐为国家4A级旅游景区;对台骀山景区日常安全检查不深入、不细致,未发现安全隐患,负有重要领导责任。给予其政务记过处分。
(4)赵李华,现任太原市迎泽区文旅局文物旅游服务中心副主任,2017年9月至2020年8月,主持太原市迎泽区文物旅游服务中心工作期间,对台骀山景区日常安全检查不深入、不细致,未发现安全隐患,负有重要领导责任。给予其政务记过处分。
太原市文化和旅游局(3人)
(5)张建斌,现任太原市文化和旅游局党组成员、三级调研员,2013年12月至2017年9月,担任太原市旅游局发展规划处处长期间,指导、初审把关不严,将不符合条件的小山沟城郊森林公园推荐上报为国家4A级旅游景区,负有重要领导责任。给予其政务记大过处分。
(6)王海平,2019年4月至今,担任太原市文化和旅游局规划发展科科长期间,在2019年8月、2020年8月两次组织对台骀山景区进行国家4A级旅游景区复核检查时,把关不严,致使不符合条件的台骀山景区通过复核检查,负有重要领导责任。给予其政务记过处分。
(7)王少华,2019年2月至今,担任太原市文化和旅游局党组成员、副局长期间,分管安全工作,对太原市迎泽区文化和旅游局开展安全监督检查工作指导不到位,未发现安全隐患,负有重要领导责任。给予其政务记过处分。
山西省文化和旅游厅(1人)
(8)师振亚,现任山西省文化和旅游厅资源开发处党支部书记、资源开发处处长,2010年9月至2018年12月,担任山西省旅游局规划财务处副处长期间,将不符合条件的台骀山景区评定为国家4A级旅游景区;2019年1月至今,担任山西省文化和旅游厅资源开发处处长期间,带队对台骀山景区进行国家4A级旅游景区复核检查时,把关不严,致使不符合条件的台骀山景区通过复核检查,负有重要领导责任。对档案保管不力,将台骀山景区创建国家4A级旅游景区的重要资料《旅游景区质量等级申请评定报告书》原件丢失。给予其党内严重警告、政务记大过处分。
消防救援机构(6人)
(9)周博,现任太原市迎泽区消防救援大队助理工程师,2016年9月至2020年4月,担任太原市公安消防支队迎泽区大队、太原市迎泽区消防救援大队郝庄片区消防监督管理组组长期间,对台骀山景区消防未进行备案擅自投入使用问题未依法予以查处;对台骀山景区消防安全日常监督检查不到位,未扎实排查和及时消除消防安全隐患,负有直接责任。给予留党察看二年、政务撤职处分。
(10)辛建义,现任太原市晋源区消防救援大队助理工程师,2017年3月至2020年2月,担任太原市公安消防支队迎泽区大队、太原市迎泽区消防救援大队郝庄片区消防监督管理组组员期间,对台骀山景区未进行备案擅自投入使用问题未依法予以查处;对台骀山景区消防安全日常监督检查不到位,未扎实排查和及时消除消防安全隐患,负有直接责任。给予其留党察看一年、政务撤职处分。
(11)张震,现任太原市小店区消防救援大队政治教导员,2015年4月至2020年8月,担任太原市公安消防支队迎泽区大队、太原市迎泽区消防救援大队政治教导员期间,对所属部门、人员开展日常消防监督检查工作失管失察,负有主要领导责任。给予其党内严重警告处分。
(12)李超鹏,现任太原市杏花岭区消防救援大队大队长,2017年1月至2020年8月,担任太原市公安消防支队迎泽区大队、太原市迎泽区消防救援大队大队长期间,对所属部门、人员开展日常消防监督检查工作失管失察,负有主要领导责任。给予其党内严重警告处分。
(13)阎红涛,现任山西省消防救援总队防火监督处副处长,2015年4月至2017年1月,担任太原市公安消防支队迎泽区大队大队长期间,对所属部门、人员开展日常消防监督检查工作失管失察,负有主要领导责任。给予其党内警告处分。
(14)任海平,现任太原市消防救援支队防火监督处副处长,2017年1月至2020年2月,担任太原市公安消防支队防火监督处监督管理科科长期间,未认真履行消防监督指导职责,对太原市迎泽区消防救援大队的消防监督检查工作疏于监督指导,负有重要领导责任。给予其党内警告处分。
林业部门(4人)
(15)郭连芝,现任太原市迎泽区文庙街道党工委书记,2011年4月至2019年5月,担任太原市迎泽区林业局局长期间,对小山沟城郊森林公园绿化和游乐设施建设同步进行的行为未进行制止;对涉事企业占用林地违法建设的行为监管不力;2015年9月,在无政策依据的前提下,同意小山沟城郊森林公园项目名称变更,推动小山沟城郊森林公园由免费项目变为收费项目;对小山沟城郊森林公园未经验收即向公众开放的行为没有制止,负有主要领导责任。给予其留党察看二年,政务撤职处分,降为一级科员。
(16)韩永斌(曾用名韩勇斌),现任山西恒诚房地产开发有限公司办公室法务,2009年6月至2016年2月,担任太原市迎泽区林业局副局长期间,主要分管林政执法等工作,对小山沟城郊森林公园绿化和游乐设施建设同步进行的行为未进行制止;对2013年至2015年期间景区违法占用、毁坏林地的行为查处不力,负有重要领导责任。给予其党内严重警告处分。
(17)史哲,现任太原市迎泽区文庙街道退役军人服务保障站站长,2010年5月至2019年5月,担任太原市迎泽区林业局综合办公室主任,承担林业行政执法职责。期间,对台骀山景区2013年至2018年违法占用、毁坏林地的行为查处不力,负有重要领导责任。给予其政务记过处分。
(18)高峰,2019年6月至今,担任太原市迎泽区林业局综合办公室主任期间,履行林业行政执法职责不力,对台骀山景区2019、2020年违法占用、毁坏林地的行为查处不力,负有重要领导责任。给予其政务记过处分。
原国土资源部门(3人)
(19)李斌魁,现已退休,2009年8月至2020年4月,担任太原市迎泽区自然资源局(太原市原国土资源局迎泽分局)党组书记、局长期间,对台骀山景区违法占地、违法建设行为监管执法不到位,存在以罚代管的问题,负有重要领导责任。给予其党内严重警告处分。
(20)孙中建,现任太原市迎泽区自然资源局党组成员、局长,2015年12月至2020年4月,担任太原市迎泽区自然资源局(太原市原国土资源局迎泽分局)党组成员、副局长期间,对台骀山景区违法占地、违法建设行为监管执法不到位,存在以罚代管的问题,负有重要领导责任。给予其政务记大过处分。
(21)裴兰荣,2013年6月至今,担任太原市国土资源执法监察支队支队长期间,对迎泽区自然资源局监管执法不到位,存在以罚代管的问题失管失察,负有重要领导责任。给予其政务记大过处分。
城乡管理部门(2人)
(22)刘俊刚,现任太原市迎泽区财政局党组书记,2016年11月至2021年2月,担任太原市迎泽区城乡管理工委书记、城乡管理局局长期间,对台骀山景区违法建设行为未制止未查处,负有重要领导责任。给予其政务记过处分。
(23)陈瑞宏,现任太原市迎泽区城市管理局四级调研员,2010年3月至2016年11月,担任太原市迎泽区城市管理局党委副书记、局长期间,对台骀山景区违法建设行为未制止未查处,负有重要领导责任。给予其政务记过处分。
太原市迎泽区郝庄镇(4人)
(24)畅耀宗,现任太原市迎泽区住房和城乡建设工委书记、区城改办主任,2012年8月至2016年3月,担任太原市迎泽区文体广电新闻出版局党组书记、局长期间,将不符合条件的小山沟城郊森林公园推荐为国家4A级旅游景区;2016年3月至今,担任太原市迎泽区郝庄镇党委书记期间,履行属地管理职责不到位,对台骀山景区违法占地、违法建设行为和存在重大安全生产隐患问题失管失察,负有主要领导责任。给予其撤销党内职务处分、政务撤职处分,降为四级主任科员。
(25)董澍,2005年3月至今,先后担任太原市迎泽区郝庄镇副镇长、镇长期间,履行属地管理责任不到位,对台骀山景区违法占地、违法建设行为和存在重大安全生产隐患问题失管失察,负有重要领导责任。给予其政务记大过处分。
(26)张福红,现任乡镇副科级干部,2016年5月至2021年2月担任太原市迎泽区郝庄镇副镇长,分管安全工作期间,履行安全生产属地管理职责不力,对台骀山景区安全生产隐患排查整治工作履职不到位,负有重要领导责任。给予其政务记大过处分。
(27)宋志强,现任太原市迎泽区郝庄镇便民服务中心主任,2017年2月至2019年5月,担任太原市迎泽区郝庄镇安全办主任期间,对台骀山景区安全生产隐患排查整改落实不到位,负有重要领导责任。给予其政务记过处分。
太原市迎泽区(4人)
太原市迎泽区区委(1人)
(28)李慧,2016年5月至今,担任太原市迎泽区代区长、区长、区委书记、区安全生产委员会主任期间,作为全区安全生产第一责任人,贯彻落实党中央、国务院及省委、省政府关于安全生产的决策部署不力,未按要求建立旅游景区综合协调机制,对台骀山景区存在重大安全生产隐患问题失管失察,对职能部门履职不力行为失于监管,负有重要领导责任。给予其党内警告处分。
太原市迎泽区政府(3人)
(29)刘爱国,2020年3月至今,担任太原市迎泽区委常委、副区长,分管安全工作期间,对台骀山景区安全生产隐患排查工作督促指导不力,负有重要领导责任。给予其政务记大过处分。
(30)杨永生,担任太原市迎泽区副区长,2016年5月至2018年2月、2020年5月至今分管文化和旅游工作期间,未建立旅游产业发展领导协调机制和旅游安全综合监管机制,对台骀山景区存在安全生产隐患问题失管失察,负有重要领导责任。给予其政务记大过处分。
(31)赵学军,2020年1月至今,担任太原市迎泽区委副书记、区政府党组书记、副区长、代区长、区长、区安全生产委员会主任期间,对台骀山景区存在重大安全生产隐患问题失管失察,负有重要领导责任。给予其政务警告处分。
太原市(2人)
(32)贾津生,现任太原市委巡察组正处级巡察专员,2006年6月至2016年5月,担任太原市迎泽区副区长,分管林业工作期间,对小山沟城郊森林公园违规同步建设绿化和游乐设施、违法占用林地建设、未经验收向公众开放的行为失管失察;2015年9月,在无政策依据的情况下,主持区政府会议同意小山沟城郊森林公园项目名称变更,推动小山沟城郊森林公园由免费项目变为收费项目,负有重要领导责任。给予其党内严重警告处分。
(33)冯原平,现任太原市人大常委会副主任,2013年6月至2016年7月,担任太原市迎泽区代区长、区长期间,对小山沟城郊森林公园项目违法占地、违法建设的问题和存在重大安全生产隐患问题失管失察。2016年7月至2020年1月,担任迎泽区区委书记期间,未能压实部门、属地监管责任,对职能部门、郝庄镇政府查处台骀山景区违法行为不力问题失于监管,负有重要领导责任。给予其党内警告处分。
需要问责的其他人员(2人)
(34)贾立新,2016年11月至今,担任太原市迎泽区安监局党组书记、局长,区应急管理局党委书记、局长期间,对2017年台骀山景区停业整顿后未经批准擅自恢复营业情况失管失察,负有重要领导责任。给予其政务记大过处分。
(35)任慧军,现任太原市迎泽区市容环卫迎泽大队队长,2012年10月至2019年3月,担任太原市迎泽区安全生产监督管理局副局长期间,对2017年台骀山景区停业整顿后未经批准擅自恢复营业情况失管失察,负有重要领导责任。给予其政务记过处分。
组织处理3人
(36)孙仁刚,现任乡镇副科级干部,在2012年8月至2016年5月担任太原市迎泽区郝庄镇党委委员、副镇长,分管安全生产工作期间,履行属地监管职责不力,对台骀山景区违法占地、违法建设的日常监督管理不到位,对景区安全生产隐患排查治理不力。对其诫勉谈话。
(37)刘丰,现任太原市迎泽区民政局党组书记、局长,2012年7月至2016年4月,担任太原市迎泽区郝庄镇党委副书记、镇长期间,履行属地监管职责不力,对台骀山景区存在的安全生产隐患失管失察。对其诫勉谈话。
(38)闫俊力,现任太原市迎泽区党组成员、副区长,2014年2月至2020年4月,担任太原市城乡管理行政执法局迎泽区分局局长期间,对台骀山景区违法建设行为未制止未查处。对其进行严肃批评,责令作出书面检查,并在一定范围内通报。
(二)对台骀山游乐园公司的处理建议
依照《生产安全事故报告和调查处理条例》第四十条规定,由太原市行政审批服务管理局吊销台骀山游乐园公司《营业执照》;依照《安全生产法》第一百零九条规定,责成太原市应急管理局对发生重大生产安全事故的台骀山游乐园公司处以罚款;依照《安全生产法》第九十一条规定,韩国林、韩伟终身不得担任本行业生产经营单位的主要负责人;依照《旅游景区质量等级管理办法》第二十五条规定,责成山西省旅游景区质量等级评定委员会对“太原市迎泽区台骀山滑世界景区”予以取消质量等级处理。
(三)其他建议
责成太原市委、市政府向省委、省政府作出深刻书面检查,责成迎泽区委、区政府向太原市委、市政府作出深刻书面检查,认真总结和汲取事故教训,进一步加强和改进安全生产工作。
八、事故主要教训
(一)没有正确处理安全与发展的关系。太原市和迎泽区对安全生产工作的重要性认识不足,片面追求经济社会发展,对招商引资项目实行“先上车、后买票”。台骀山游乐园作为迎泽区重点引进项目,各级政府及相关部门应当依法予以大力支持,但因服务管理没有跟上,在没有办理规划、用地、建设、消防等相关手续的情况下,“一路绿灯”使不具备安全条件的景区对外开放营业,甚至被推荐评定为国家4A级旅游景区。太原市和迎泽区贯彻落实安全生产方针政策、法律法规和重大决策部署不到位,一些领导到台骀山游乐园调研检查工作时,鼓劲加油多,查找问题少,甚至相关部门多次提请政府对台骀山游乐园违法占地建设进行查处,也未引起高度重视,对相关部门未依法有效监管问题失管失察,致使台骀山游乐园“先天不足”,埋下重大安全隐患。
(二)涉事企业建设运营管理极其混乱。台骀山游乐园公司无视国家法律法规和政策规定,在未取得有关部门行政审批手续的情况下,进行违法占地、建设等活动。在游乐场馆建设中没有使用正规的设计、施工、监理、验收单位进行建设,致使电气线路敷设、接地短路保护和逃生通道、安全出口的设置等不符合安全要求,甚至人为封堵冰雕馆安全出口。特别是在国家要求人员密集场所室内装修装饰严禁使用聚氨酯、聚苯乙烯等易燃可燃材料的情况下,仍然采用上述材料作为包括冰雕馆在内的大量游乐场馆的保温材料。该企业为“家族式”企业,管理层整体素质不高,安全意识淡薄,安全管理流于形式。没有按规定建立安全生产管理机构、配备专兼职安全管理人员、健全全员安全生产责任制;制定的规章制度、开展的安全培训针对性和操作性不强,电力作业人员未经培训无证上岗;安全隐患排查整治走过场,即使相关部门检查指出一些问题,但一些重大消防安全隐患始终没有整改,更未举一反三进行全面排查治理。
(三)有关部门审批监管不负责任。太原市、迎泽区有关部门未认真落实“管行业必须管安全、管业务必须管安全、管生产经营必须管安全”的要求,在台骀山游乐园安全监管上互相推诿扯皮,安全生产挂牌责任制悬空。台骀山游乐园在没有取得建设用地规划许可、建设工程规划许可、消防行政许可或进行备案的情况下建成运营,有关部门对此视而不见,没有依法严格查处,也未将其列为消防安全重点单位,反而被确定为国家4A级旅游景区。该公司在长达7年的建设经营活动中,有关部门层层把关、层层失守,多次到现场检查,失之于宽、失之于软,实际上纵容了该公司的违法行为。同时调查发现,政府对电力用户企业安全监管缺失。
(四)隐患排查治理流于形式。近年来火灾事故给人民生命财产带来重大损失。为深刻汲取教训,国家和省安排部署了多次消防安全专项整治,但太原市、迎泽区及其有关部门压力传导不够、工作安排不实、检查要求不严、责任层层衰减。迎泽区政府虽然组织开展过郝庄地区彩钢板建筑消防安全隐患专项整治,却未将台骀山游乐园纳入整治范围;有关单位和部门在执法检查中,填写的执法检查文书与实际存在的问题严重不符。“10·1”事故发生后,经事故调查组责成迎泽区政府对该景区21个场馆进行专项检查,发现仍有13处场馆采用了聚氨酯作保温材料。
九、事故防范措施建议
(一)牢固树立安全发展理念,健全安全生产责任体系。各级党委政府特别是太原市要迅速组织党政领导干部、部门监管人员及企业负责人,深入学习贯彻习近平总书记关于安全生产重要论述和视察我省时强调的“加强安全生产监管,强化风险防控,牢牢守住安全生产底线”重要指示,以及针对我省近期发生的重大事故作出的重要批示精神,进一步树牢安全发展理念,强化“发展决不能以牺牲安全为代价”的红线意识,以铁的担当尽责、铁的手腕治患、铁的心肠问责、铁的办法治本,坚决杜绝重特大生产安全事故。适时组织开展安全生产专项巡查。各级党政领导干部每月都要抽出一定时间深入基层企业检查指导安全生产工作,要坚决防止作秀留痕走过场,切实推动地方党政领导干部安全生产责任制落到实处。要建立“管行业必须管安全、管业务必须管安全、管生产经营必须管安全”实施细则,进一步厘清各行业领域安全监管责任和边界,特别是要明确旅游景区以及企业用电安全的监管部门。要建立健全安全生产分级分类监管办法,全面推行主要负责人安全生产履职尽责承诺制度,推动企业主体责任落实。
(二)完善行政审批联动机制,加强安全生产源头管控。各级政府要坚持监管与服务并重原则,从规划用地、立项备案、环境评价、建设施工、消防验收、供电供水等多个环节,建立多部门联审联批机制,形成齐抓共管合力,提高行政审批效率。要建立健全部门信息共享机制,对行政审批事项及日常监管中发现的问题,要及时互通情况。对未取得合法手续以及存在重大违法行为的,必须依法予以查处,并可以采取通知有关单位停止供电供水等措施,从源头上遏制非法违法生产经营建设行为。
(三)深入开展旅游景区专项整治,彻底排查治理安全隐患。各级党委政府特别是太原市及迎泽区要深刻汲取台骀山游乐园“10·1”重大火灾事故教训,立即组织开展各行业领域安全生产风险隐患排查治理专项行动。要把国家A级景区旅游安全纳入安全生产三年专项行动,做到同部署、同落实、同考核。各级旅游行业管理部门要牵头组织有关部门,开展联合执法,对景区的规划、用地、建筑物、特种设备、消防设施设备等进行全面细致的排查整治。对违规使用聚氨酯、聚苯乙烯等各类易燃可燃材料、疏散通道和安全出口不通畅等问题的要责令企业立即停产停业整顿,彻底消除重大安全隐患;对存在重大安全隐患且拒不执行监管指令的,要坚决纳入联合惩戒对象;对不符合消防安全条件的景区,在限期改正消除隐患之前,不得评定为A级景区,已经被评定为A级旅游景区要取消质量等级;对旅游景区要全部落实安全生产挂牌责任,明确挂牌责任单位和具体责任人。
(四)抓住企业“关键少数”,压实安全生产主体责任。各级各部门要紧紧抓住企业法定代表人、董事长、总经理、实际控制人这个关键,督促企业主要负责人组织开展“零事故”单位创建活动,细化标准内容、加强监督考核,对发生事故的要依法予以严肃查处,强化警示教育作用,推动落实企业安全生产主体责任。旅游行业管理部门要立即组织开展旅游景区主要负责人安全培训和考核,全面提升其安全意识和能力素质。
(五)广泛开展宣传教育,不断增强安全防范意识和自救互救能力。要突出抓好安全生产宣传教育工作,并将其纳入各级各部门安全生产和消防工作目标责任考核体系,扎实开展安全生产“进企业、进农村、进社区、进学校、进家庭”活动,全面提升社会参与能力、全民安全素质和社会整体安全水平。特别是太原市、迎泽区及旅游行业管理部门要认真汲取事故教训,组织开展现场警示教育,以案说法、现身说法,用身边事教育身边人,进一步强化属地党委政府及部门和有关企业法律意识、责任意识和安全意识。要督促旅游景区等人员密集场所切实加强安全生产教育培训,开展应急救援演练,强化从业人员安全意识、岗位技能和自救互救能力;要充分利用传统媒体和新媒体,大力宣传普及消防安全知识和自救逃生常识,全面提高社会公众安全素质。






















































