王总遵从极简生活理念,认为房屋与时间一样需主次分明,一个空间中应刨去多余物品,只留下日常所需,这样才能更专注、更高效的经营生活。设计师根据王总需求,选择极简的设计风格作为空间主调,并融入了对称元素,让整个空间变得具有几何美,另外,天然材质的相互利用,再加上低饱和度的色调,让整个空间变得十分低调,展示出家的温馨与质感。

(B层原始户型图)

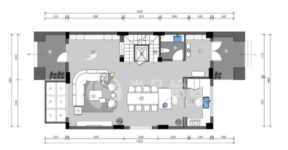
(B层改造图)
B层大的改动是打通了客餐位置,使休息区、客厅、餐厅和吧台处于一条直线,提升了空间的公共活动空间,并改动了别墅的楼梯位。

B层设计中,设计师摒弃了传统的空间布局,以满足生活功能为主,动线规整有序,生活便捷度高。

家庭影院以高级灰为主色调,摒弃传统电视机改用投影仪,配以围合式沙发设计,打造出一处休闲的休闲空间。

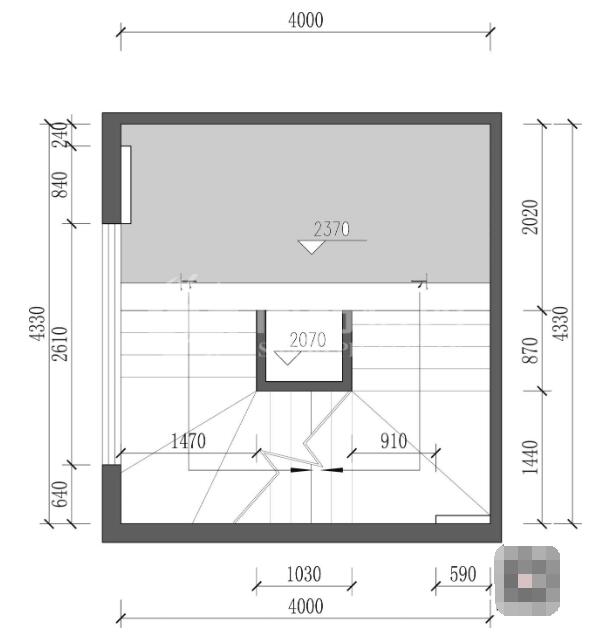
(一层原始户型图)

(一层改造图)
根据风水理念,设计师在一层增加了玄关空间,更改楼梯位置后,楼梯位于楼层中部,楼层拥有更多的面积用于优化客餐动线。

设计师匠心独运,将现代凝练的线条与时尚元素相结合,细细品味,能发现饶有趣味的细节情景,感受到生活之美。

在风格统一的餐厅空间里,低饱和度餐椅展现出高雅的艺术品味,餐桌与岛柜相互连接,满足了家人之间的交流和沟通,功能与美感兼具。

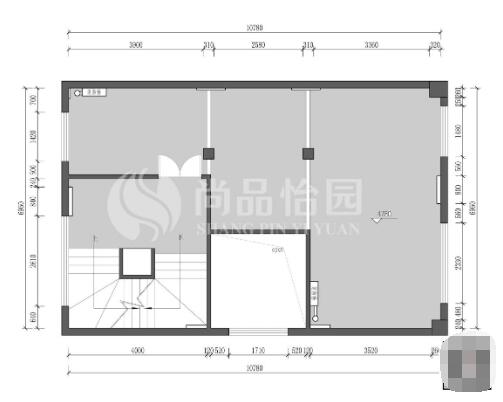
(二层原始户型图)

(二层改造图)
楼梯的填充为二层空间赢出更多空间面积,设计师按照业主需求更改为三个卧室和两个卫生间。

卧室空间以淡雅的粉色为背景,石膏线勾勒出空间层次,结合精致材质软装点缀,打造出静谧舒适的休憩空间。

背景设计中,设计师适当运用高档冷色点缀其中,以色块的方式呈现出时尚感与设计感,灯具的融入营造出高雅的生活品味。

暖色背景墙中加入石膏线勾勒,无形中拉高了空间,设计师通过提取童话元素打造米老鼠床头,营造出小主人喜爱的迪士尼童话世界。

(三层原始户型图)

(三层改造图)
三层拆除多余墙体,规划出两个卧室和两个卫生间。

卧室背景壁纸看似简单,意境感及立体感较强,低饱和度床品配色与风格主题相辅相成,呈现出简约至上的生活美学。

蓝色背景设计为空间增加了些许质感,灰色调软装搭配其中,彰显沉稳质感,装饰画点明儿童房童话主题。

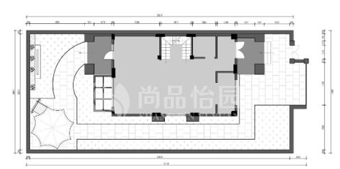
(四层原始户型图)

(四层改造图)
顶楼中部原本可以做卧室,但业主认为设计为卧室有些多余,不如将墙体拆除打造超级大阳台,便于孩子娱乐。

阳台部分做了动线规划,形成更开阔的视觉感受。

阳台顶面做了遮阳处理,浅色遮阳材料既不影响光线的进入,又能进行遮阳;空间中还放置了休闲桌椅和绿植,打造出小小的社交空间。

阳台另一边,放置了藤椅和绿植,满足了日常社交需求。
本案设计师简介

(董明设计师)
首席设计师:董明
从业年限:10年
擅长风格:现代极简、意式极简、法式轻奢、新古典装饰、美式、新中式等
擅长类型:平层,大宅,别墅,会所,LOFT,户型改造
设计见解:感性与理性的结合,做有态度的设计。
成功项目楼盘:
东山墅、碧水庄园、恬园别墅、长春壹号会所、新世界丽樽、润泽御府、紫禁壹号院、长滩壹号、颐和别墅、凯德麓语、保利陇上、优山美地、潮白河孔雀城、森林新都孔雀城、林熙颐园、汤林御府等。
所获奖项:
全国青年设计师大赛奖设计金奖、
荣获亚太室内空间艺术优秀奖
筑巢杯设计大赛优秀设计奖
中国室内空间环境艺术设计大赛优秀奖
金创意奖国际空间大赛“别墅豪宅类——年度优秀设计奖”